︎
About  Work  Contact


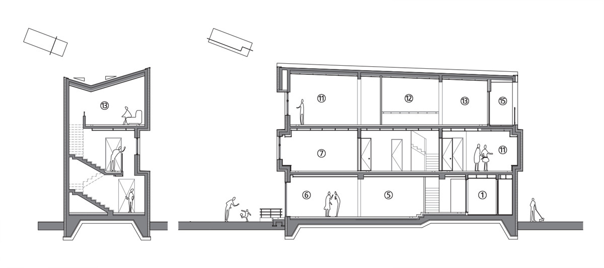
Zig Zag House

Client : GEBDESIGN, 이창규
http://www.changkyulee.com/zig-zag-house
https://uujj.co.kr/bbs/board.php?bo_table=house&wr_id=552